|
【产品名称:电动O型球阀】 【产品型号:Q941F-16C】 【产品介绍】: Q941F电动O型球阀阀体材质有铸钢(WCB)或不锈钢,阀座多选用聚四氟乙烯、对位聚苯等高分子聚合材料,密封性能好,用于输送气体或液体的介质的管道上宜使用。 【工作原理】: Q941F电动O型球阀是以电源电压作动力,接受(4~20mA、0~10mA或1~5VDC)电流信号或电压信号,即可控制运转,以角行程输出的扭矩转动球体0~90°,就能完成启闭动作或调节动作。全电子式电动执行机构,采有机电一体化结构,具有机内伺服操作和开度信号位置反馈、位置指示、手动操作等功能,功能强、性能可靠、连线简单,通过输入电流信号或电压信号,改变球芯的旋转角度(0~90°任意角度),实现比例调节动作。 【产品特点】: 1、安装简便,能以任意方向安装于管道中的任意部位。 2、精小型电动执行器有多种电源可供选择,更有防爆电装。 3、阀体内通道平整光滑,可以输送粘性流体、浆液以及固体颗粒。 4、直连方式,电动执行机构内置伺服系统,无须另配伺服放大器。 5、球阀和电动执行器之间无支架连接,一体化的外型结构紧凑,减少设备空间。 6、密封材料为聚四氟乙烯等,具有自润滑性,与球体的摩擦损小,故球阀的使用寿命长。 【主要技术参数】:
☆阀体 | 阀体形式 | 直通铸造阀 | | 公称通径 | DN15~300mm | | 公称压力 | PN1.6、2.5、4.0、6.4 MPa;ANSI 150、300LB ;JIS 10、20、30K | | 法兰标准 | JIS、ANSI、GB、JB、HG等 | | 连接形式 | 法兰式、焊接式、螺纹式 | | 阀盖形式 | 一体式 | | 压盖型式 | 压板压紧式 | | 密封填料 | V型聚四氟乙烯填料、柔性石墨填料等 |
☆阀内件 ☆执行机构 | 执行器型号 | DSR、3810R、DZW、HQ、PSQ | | 主要技术参数 | 电源电压:220V/50Hz、380V/50Hz、输入信号:4-20mA或1-5V·DC、输出信号:4-20mA·DC | | 防护等级:相当IP65(或IP67)、隔爆标志:ExdⅡBT4、手操功能:手柄 | | 环境温度:-25~+70℃、环境湿度:≤95% |
※注:如需详细执行器参数,请进入电动执行器页面进行查阅。 ☆主要性能指标 | 公称通径 DN(mm) | 15 | 20 | 25 | 32 | 40 | 50 | 65 | 80 | 100 | 125 | 150 | 200 | 250 | 300 | | 额定流量系数KV | 21 | 38 | 72 | 112 | 170 | 273 | 384 | 512 | 940 | 1452 | 2222 | 3589 | 5128 | 7359 | | 允许压差(MPa) | ≤ 公称压力 | | 动作范围 | 0~90°、0~360° | | 泄露量Q | 按GB/T4213-92,小于额定KV0.01% | | 基本误差 | ±1% | | 回差 | ±1% | | 死区 | ≤1% | | 可调范围 | 250:1 | 350:1 |
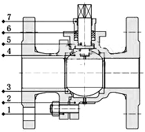
☆主要零件材料 | 1 | 左阀体 | WCB、CF8、CF8M、CF3M | 
| | 2 | 右阀体 | WCB、CF8、CF8M、CF3M | | 3 | 阀座 | PEFE、PPL、304、316 | | 4 | 球体 | 2Cr13、304、316 | | 5 | 阀杆 | 2Cr13、304、316 | | 6 | 密封填料 | PTFE/柔性石墨 | | 7 | 填料压盖 | WCB、CF8、CF8M、CF3M |
【主要外形及连接尺寸】:
| 公称通径 DN(mm) | 15 | 20 | 25 | 32 | 40 | 50 | 65 | 80 | 100 | 125 | 150 | 200 | 250 | 300 | | L | 130 | 140 | 150 | 165 | 180 | 200 | 220 | 250 | 280 | 320 | 360 | 400 | 630 | 750 | | H | 44.5 | 49 | 55 | 65 | 65 | 75 | 90 | 95 | 115 | 127 | 140 | 172.5 | 310 | 350 | | H1 | 根据所配执行机构而定 | | D | 95 | 105 | 115 | 140 | 150 | 165 | 185 | 200 | 220 | 250 | 285 | 340 | 405 | 460 | | D1 | 65 | 75 | 85 | 100 | 110 | 125 | 145 | 160 | 180 | 210 | 240 | 295 | 355 | 410 | | D2 | 46 | 56 | 65 | 76 | 84 | 99 | 118 | 132 | 156 | 184 | 211 | 266 | 319 | 370 | | n-φd | 4-14 | 4-14 | 4-14 | 4-18 | 4-18 | 4-18 | 4-18 | 8-18 | 8-18 | 8-18 | 8-22 | 12-22 | 12-26 | 12-26 | | A、A1 | 根据阀门所需力矩而定,配置机型不同,外形尺寸也不相同 |
※注:以上参数均以国标PN1.6MPa为准,其他压力等级请咨询公司技术部,表中尺寸为不带标准附件数据,另由于产品改进技术创新参数可能有一定变化,请咨询公司技术部门索取最新数据 , |