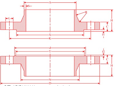
凹凸面对焊钢制管法兰 PN 4.0MPa(40bar)

|
公称 通径 DN |
管子 外径 A |
连接尺寸 |
密封尺寸 |
法 兰 厚 度 C |
法 兰 高 度 H |
法 兰 内 径 B |
劲 部 直 径 Nmax |
圆 角 半 径 R |
法兰理论 重量kg |
|
法兰管径D 系列1/系列2 |
螺栓 孔中 心圆 直径K |
螺栓孔 直径L 系列1/ 系列2 |
螺栓、螺柱 |
d |
X 系列1 / 系列2 |
Y 系列1 / 系列2 |
f |
f1 f2 |
|
数量 n |
螺纹Th. 系列1/系列2 |
A型 |
B型 |
|
10 |
14 |
90 |
60 |
14 |
4 |
M12 |
40 |
34 |
35 |
2 |
4 |
16 |
35 |
8 |
26 |
4 |
0.77 |
0.67 |
|
15 |
18 |
95 |
65 |
14 |
4 |
M12 |
45 |
39 |
40 |
2 |
4 |
16 |
35 |
12 |
30 |
5 |
0.87 |
0.77 |
|
20 |
25 |
105 |
75 |
14 |
4 |
M12 |
55 |
50 |
51 |
2 |
4 |
16 |
36 |
18 |
38 |
5 |
1.09 |
0.97 |
|
25 |
32 |
115 |
85 |
14 |
4 |
M12 |
65 |
57 |
58 |
2 |
4 |
16 |
38 |
25 |
45 |
5 |
1.31 |
1.18 |
|
32 |
38 |
140/135 |
100 |
18 |
4 |
M16 |
78 |
65 |
66 |
2 |
4 |
18 |
45 |
31 |
56 |
5 |
2.17 |
1.98 |
|
40 |
45 |
150/145 |
110 |
18 |
4 |
M16 |
85 |
75 |
76 |
3 |
4 |
18 |
, 48 |
38 |
64 |
5 |
2.51 |
2.14 |
|
50 |
57 |
165/160 |
125 |
18 |
4 |
M16 |
100 |
87 |
88 |
3 |
4 |
20 |
48 |
48 |
76 |
5 |
3.34 |
2.92 |
|
65 |
73 |
185/180 |
145 |
18 |
8 |
M16 |
120 |
109 |
110 |
3 |
4 |
22 |
52 |
66 |
96 |
6 |
4.34 |
3.85 |
|
80 |
89 |
200/195 |
160 |
18 |
8 |
M16 |
135 |
120 |
121 |
3 |
4 |
24 |
58 |
78 |
112 |
6 |
5.52 |
5.03 |
|
100 |
108 |
235/230 |
190 |
23 |
8 |
M20 |
160 |
149 |
150 |
3 |
4.5 |
26 |
68 |
96 |
138 |
6 |
8.39 |
7.71 |
|
125 |
133 |
270 |
220 |
26/25 |
8 |
M24/M22 |
188 |
175 |
176 |
3 |
4.5 |
28 |
68 |
120 |
160 |
8 |
11.06 |
10.27 |
|
150 |
159 |
300 |
250 |
26/25 |
8 |
M24/M22 |
218 |
203 |
204 |
3 |
4.5 |
30 |
72 |
145 |
186 |
8 |
14.16 |
13.30 |
|
175 |
194 |
330 |
280 |
26/25 |
12 |
M24/M22 |
248 |
233 |
234 |
3 |
4.5 |
36 |
88 |
177 |
226 |
10 |
21.80 |
20.97 |
|
200 |
219 |
360 |
310 |
26/25 |
12 |
M24/M22 |
278 |
259 |
260 |
3 |
4.5 |
38 |
88 |
200 |
250 |
10 |
25.56 |
24.72 |
|
225 |
245 |
395 |
340 |
30 |
12 |
M27 |
302 |
286 |
287 |
3 |
4.5 |
40 |
98 |
226 |
280 |
10 |
32.48 |
31.60 |
|
250 |
273 |
425 |
370 |
30 |
12 |
M27 |
332 |
312 |
313 |
3 |
4.5 |
42 |
102 |
252 |
310 |
10 |
39.87 |
39.00 |
|
300 |
325 |
485 |
430 |
30 |
16 |
M27 |
390 |
363 |
364 |
4 |
4.5 |
46 |
116 |
301 |
368 |
12 |
55.97 |
53.21 |
|
350 |
377 |
555/550 |
490 |
34 |
16 |
M30 |
448 |
421 |
422 |
4 |
5 |
52 |
120 |
351 |
418 |
12 |
75.30 |
72.29 |
|
400 |
426 |
620/610 |
550 |
36/34 |
16 |
M33/M30 |
505 |
473 |
474 |
4 |
5 |
58 |
142 |
398 |
480 |
12 |
112.02 |
108.44 |
|
450 |
480 |
670/660 |
600 |
36/34 |
20 |
M33/M30 |
555 |
523 |
524 |
4 |
5 |
60 |
146 |
448 |
530 |
14 |
112.82 |
109.70 |
|
500 |
530 |
730 |
660 |
36/41 |
20 |
M33/M36 |
610 |
575 |
576 |
4 |
5 |
62 |
156 |
495 |
580 |
15 |
142.70 |
138.60 |
|
600 |
630 |
890 |
795 |
48/54 |
20 |
M45/M48 |
730 |
675/677 |
676/678 |
5 |
6 |
62 |
176 |
595 |
700 |
20 |
167 |
160 |
|
700 |
720 |
995 |
900 |
48/54 |
24 |
M45/M48 |
825 |
777/767 |
778/768 |
5 |
6 |
68 |
200 |
680 |
780 |
20 |
275 |
265 |
|
800 |
820 |
140/1135 |
1030 |
58 |
24 |
M52 |
960 |
882\875 |
883/876 |
5 |
6 |
76 |
220 |
780 |
910 |
22 |
410 |
400 |
凹凸面对焊钢制管法兰 PN 6.4MPa(64bar)
|
公称 通径 DN |
管子 外径 A |
连接尺寸 |
密封尺寸 |
法 兰 厚 度 C |
法 兰 高 度 H |
法 兰 内 径 B |
劲 部 直 径 Nmax |
圆 角 半 径 R |
法兰理论 重量kg |
|
法兰 管径D 系列1 /系列2 |
螺栓孔 中心圆 直径 K |
螺栓孔 直径L 系列1/ 系列2 |
螺栓、螺柱 |
d |
X 系列1 / 系列2 |
Y 系列1 / 系列2 |
f |
f1 f2 |
|
数量 n |
螺纹Th 系列1/ 系列2 |
A型 |
B型 |
|
10 |
14 |
100 |
70 |
14 |
4 |
M12 |
50 |
34 |
35 |
2 |
4 |
18 |
48 |
8 |
34 |
4 |
1.12 |
1.02 |
|
15 |
18 |
105 |
75 |
14 |
4 |
M12 |
55 |
39 |
40 |
2 |
4 |
18 |
48 |
12 |
38 |
5 |
1.25 |
1.14 |
|
20 |
25 |
130/125 |
90 |
18 |
4 |
M16 |
68 |
50 |
51 |
2 |
4 |
20, |
56 |
18 |
48 |
5 |
2.12 |
1.95 |
|
25 |
32 |
140/135 |
100 |
18 |
4 |
M16 |
78 |
57 |
58 |
2 |
4 |
22 |
58 |
25 |
52 |
5 |
2.64 |
2.46 |
|
32 |
38 |
155/150 |
110 |
23 |
4 |
M20 |
82 |
65 |
66 |
2 |
4 |
24 |
62 |
31 |
64 |
5 |
3.50 |
3.28 |
|
40 |
45 |
170/165 |
125 |
23 |
4 |
M20 |
95 |
75 |
76 |
3 |
4 |
24 |
68 |
37 |
74 |
5 |
4.35 |
3.91 |
|
50 |
57 |
180/175 |
135 |
23 |
4 |
M20 |
105 |
87 |
88 |
3 |
4 |
26 |
70 |
47 |
86 |
5 |
5.29 |
4.80 |
|
65 |
73 |
205/200 |
160 |
23 |
8 |
M20 |
130 |
109 |
110 |
3 |
4 |
28 |
75 |
64 |
106 |
6 |
7.00 |
6.43 |
|
80 |
89 |
215/210 |
170 |
23 |
8 |
M20 |
140 |
120 |
121 |
3 |
4 |
30 |
75 |
77 |
120 |
6 |
8.07 |
7.50 |
|
100 |
108 |
250 |
200 |
26/25 |
8 |
M24/M22 |
168 |
149 |
150 |
3 |
4.5 |
32 |
80 |
94 |
140 |
6 |
11.51 |
10.80 |
|
125 |
133 |
295 |
240 |
30 |
8 |
M27 |
202 |
175 |
176 |
3 |
4.5 |
36 |
98 |
118 |
172 |
8 |
18.02 |
17.09 |
|
150 |
159 |
345/340 |
280 |
34 |
8 |
M30 |
240 |
203 |
204 |
3 |
4.5 |
38 |
108 |
142 |
206 |
8 |
26.45 |
25.29 |
|
175 |
194 |
375/370 |
310 |
34 |
12 |
M30 |
270 |
233 |
234 |
3 |
4.5 |
42 |
110 |
174 |
232 |
10 |
30.63 |
29.61 |
|
200 |
219 |
415/405 |
345 |
36/34 |
12 |
M33/M30 |
300 |
259 |
260 |
3 |
4.5 |
44 |
116 |
198 |
264 |
10 |
39.68 |
38.51 |
|
225 |
245 |
430 |
370 |
36/34 |
12 |
M33/M30 |
325 |
286 |
287 |
3 |
4.5 |
46 |
120 |
222 |
290 |
10 |
43.34 |
42.32 |
|
250 |
273 |
470 |
400 |
36/41 |
12 |
M33/M36 |
352 |
312 |
313 |
3 |
4.5 |
48 |
122 |
246 |
316 |
10 |
53.64 |
52.47 |
|
300 |
325 |
530 |
460 |
36/41 |
16 |
M33/M36 |
412 |
363 |
364 |
4 |
4.5 |
54 |
136 |
294 |
370 |
12 |
73.10 |
69.97 |
|
350 |
377 |
600/595 |
525 |
41 |
16 |
M36 |
475 |
421 |
422 |
4 |
5 |
60 |
154 |
342 |
430 |
12 |
103.50 |
108.44 |
|
400 |
426 |
670 |
585 |
42/48 |
16 |
M39/M42 |
525 |
473 |
474 |
4 |
5 |
66 |
170 |
386 |
484 |
12 |
143.30 |
138.90 |
|
450 |
480 |
715 |
630 |
48 |
20 |
M42 |
570 |
523 |
524 |
4 |
5 |
70 |
186 |
440 |
540 |
15 |
160 |
155 |
|
500 |
530 |
800 |
705 |
48/54 |
20 |
M45 |
640 |
575 |
576 |
4 |
5 |
70 |
200 |
485 |
595 |
18 |
215 |
210 |
|
600 |
630 |
930 |
820 |
58 |
20 |
M52 |
750 |
675/677 |
676/678 |
5 |
6 |
76 |
220 |
585 |
710 |
18 |
320 |
310 |
凹凸面对焊钢制管法兰 PN 10.0MPa(100bar)
|
公称 通径 DN |
管子 外径 A |
连接尺寸 |
密封尺寸 |
法 兰 厚 度 C |
法 兰 高 度 H |
法 兰 内 径 B |
劲 部 直 径 Nmax |
圆 角 半 径 R |
法兰理论 重量kg |
|
法兰管径 D 系列1 /系列2 |
螺栓孔 中心圆 直径 K |
螺栓孔 直径L 系列1 /系列2 |
螺栓、螺柱 |
d |
X 系列1 / 系列2 |
Y 系列1 / 系列2 |
f |
f1 f2 |
|
数量 n |
螺纹Th 系列1 /系列2 |
A型 |
B型 |
|
10 |
14 |
100 |
70 |
14 |
4 |
M12 |
50 |
34 |
35 |
2 |
4 |
18 |
45 |
8 |
34 |
4 |
1.12 |
1.01 |
|
15 |
18 |
105 |
75 |
14 |
4 |
M12 |
55 |
39 |
40 |
2 |
4 |
20 |
48
, |
12 |
38 |
5 |
1.37 |
1.26 |
|
20 |
25 |
130/125 |
90 |
18 |
4 |
M16 |
68 |
50 |
51 |
2 |
4 |
22 |
56 |
18 |
48 |
5 |
2.30 |
2.13 |
|
25 |
32 |
140/135 |
100 |
18 |
4 |
M16 |
78 |
57 |
58 |
2 |
4 |
24 |
58 |
25 |
52 |
5 |
2.86 |
2.67 |
|
32 |
38 |
155/150 |
110 |
23 |
4 |
M20 |
82 |
65 |
66 |
2 |
4 |
24 |
62 |
31 |
64 |
5 |
3.50 |
3.28 |
|
40 |
45 |
170/165 |
125 |
23 |
4 |
M20 |
95 |
75 |
76 |
3 |
4 |
26 |
70 |
37 |
76 |
5 |
4.72 |
4.28 |
|
50 |
57 |
195 |
145 |
26/25 |
4 |
M24/M22 |
112 |
87 |
88 |
3 |
4 |
28 |
72 |
45 |
86 |
5 |
6.58 |
6.02 |
|
65 |
73 |
220 |
170 |
26/25 |
8 |
M24/M22 |
138 |
109 |
110 |
3 |
4 |
32 |
84 |
62 |
110 |
6 |
9.20 |
8.60 |
|
80 |
89 |
230 |
180 |
26/25 |
8 |
M24/M22 |
148 |
120 |
121 |
3 |
4 |
34 |
90 |
75 |
124 |
6 |
10.61 |
9.97 |
|
100 |
108 |
265 |
210 |
30 |
8 |
M27 |
172 |
149 |
150 |
3 |
4.5 |
38 |
100 |
92 |
146 |
6 |
15.54 |
14.70 |
|
125 |
133 |
315/310 |
250 |
34 |
8 |
M30 |
210 |
175 |
176 |
3 |
4.5 |
42 |
115 |
112 |
180 |
8 |
25.10 |
24.00 |
|
150 |
159 |
315/350 |
290 |
34 |
12 |
M30 |
250 |
203 |
204 |
3 |
4.5 |
46 |
130 |
136 |
214 |
8 |
34.43 |
33.26 |
|
175 |
194 |
385/380 |
320 |
34 |
12 |
M30 |
280 |
233 |
234 |
3 |
4.5 |
48 |
135 |
166 |
246 |
10 |
41.60 |
40.47 |
|
200 |
219 |
430 |
360 |
36/41 |
12 |
M33/M36 |
312 |
259 |
260 |
3 |
4.5 |
54 |
145 |
190 |
276 |
10 |
57.14 |
55.80 |
|
225 |
245 |
470 |
400 |
41 |
12 |
M36 |
352 |
286 |
287 |
3 |
4.5 |
56 |
165 |
212 |
312 |
10 |
73.30 |
71.90 |
|
250 |
273 |
505/500 |
430 |
41 |
12 |
M36 |
382 |
312 |
313 |
3 |
4.5 |
60 |
170 |
236 |
340 |
10 |
89.30 |
87.90 |
|
300 |
325 |
585 |
500 |
42/48 |
16 |
M39/M42 |
442 |
363 |
364 |
4 |
4.5 |
70 |
195 |
284 |
400 |
12 |
107.45 |
130.10 |
|
350 |
377 |
665 |
560 |
48/54 |
16 |
M45/M48 |
498 |
421 |
422 |
4 |
5 |
76 |
210 |
332 |
460 |
12 |
186.00 |
175.20 |
|
400 |
426 |
715 |
620 |
48/54 |
16 |
M45/M48 |
558 |
473 |
474 |
4 |
5 |
80 |
220 |
376 |
510 |
12 |
223.50 |
218.50 |